A Better Way to Build

Built around you
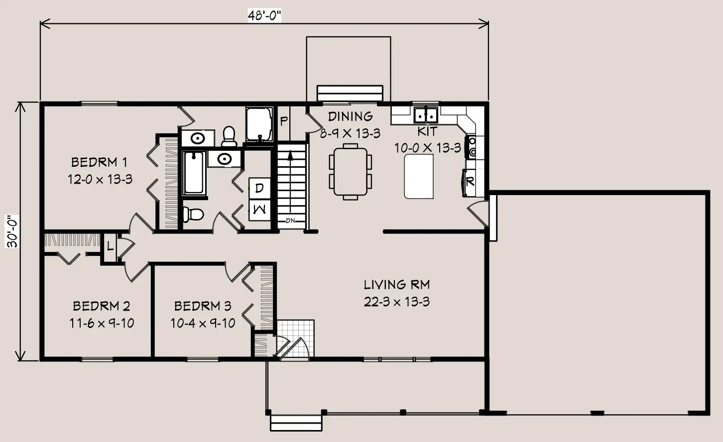
Pepperwood
A bright, open single-story layout with a private primary suite and smart everyday functionality.

Pepperwood: At a Glance

  • Open floor plan
  • Master suite with large walk in closet
  • Utility room entrance from garage
  • Custom locker storage
  • Gas or electric fireplace
  • Bedrooms: 2 – Main
  • Building Area: 56’x33′
  • Floors: Optional
  • Bathrooms: 3 – Main
  • Square Feet: 1,732
  • Garage: Optional

Explore single-story floor plans designed to make your everyday life easier. Enjoy the convenience of having everything you need on one level – without giving up space, comfort, or style. As you browse, compare layouts, features, and room configurations to find what fits your lifestyle. Click on any plan to see photos and discover ways to personalize it, from additional bedrooms and bathrooms to other design choices that make it truly yours.

Make It Yours
Start with a plan you like, then make it truly yours. You’ll work with experienced builders and designers to tailor every detail to fit your lifestyle and your family.

Schedule a free consultation with your Authorized Heritage Builder by calling us at (800) 759-2782

General Inquiries

Let’s hear it!

All fields are required.

This site is protected by reCAPTCHA and the Google Privacy Policy and Terms of Service apply.

Sent Successfully!

We will see your message soon and respond accordingly.

[ultimatemember form_id="105"]