A Better Way to Build

Built around you
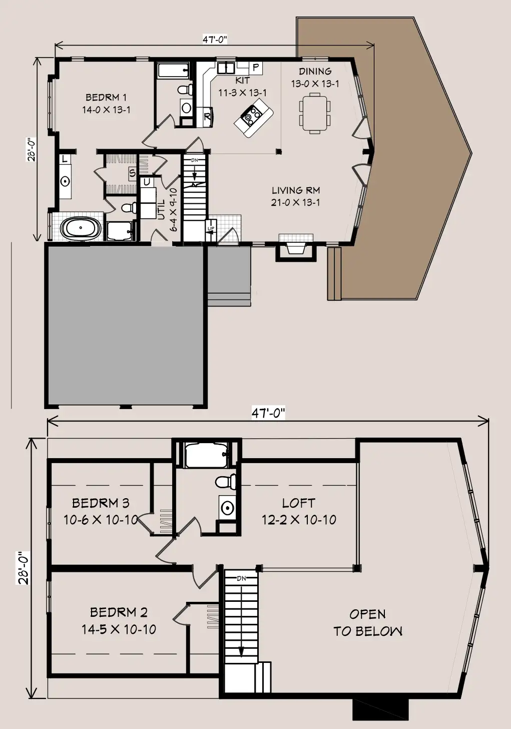
Dillon
A classic two-story layout featuring an oversized primary suite, statement staircase, and optional garage.

Dillon: At a Glance

  • Large windows
  • Master suite with large walk in closet
  • Utility room entrance from garage
  • Two story – high ceiling with loft
  • Floor to ceiling fireplace option
  • Bedrooms: 2 – Main
  • Building Area: 56’x33′
  • Floors: Optional
  • Bathrooms: 3 – Main
  • Square Feet: 1,732
  • Garage: Optional

Give yourself room to live the way you want. With open gathering spaces on the main level and private areas above, these two-story and loft homes are designed to bring comfort and balance to everyday life. Explore different layouts, compare features, and see how each home can be tailored to you – from expanded living spaces to layout variations that fit your property and your plans.

Make It Yours
Start with a plan you like, then make it truly yours. You’ll work with experienced builders and designers to tailor every detail to fit your lifestyle and your family.

Schedule a free consultation with your Authorized Heritage Builder by calling us at (800) 759-2782

General Inquiries

Let’s hear it!

All fields are required.

This site is protected by reCAPTCHA and the Google Privacy Policy and Terms of Service apply.

Sent Successfully!

We will see your message soon and respond accordingly.

[ultimatemember form_id="105"]