
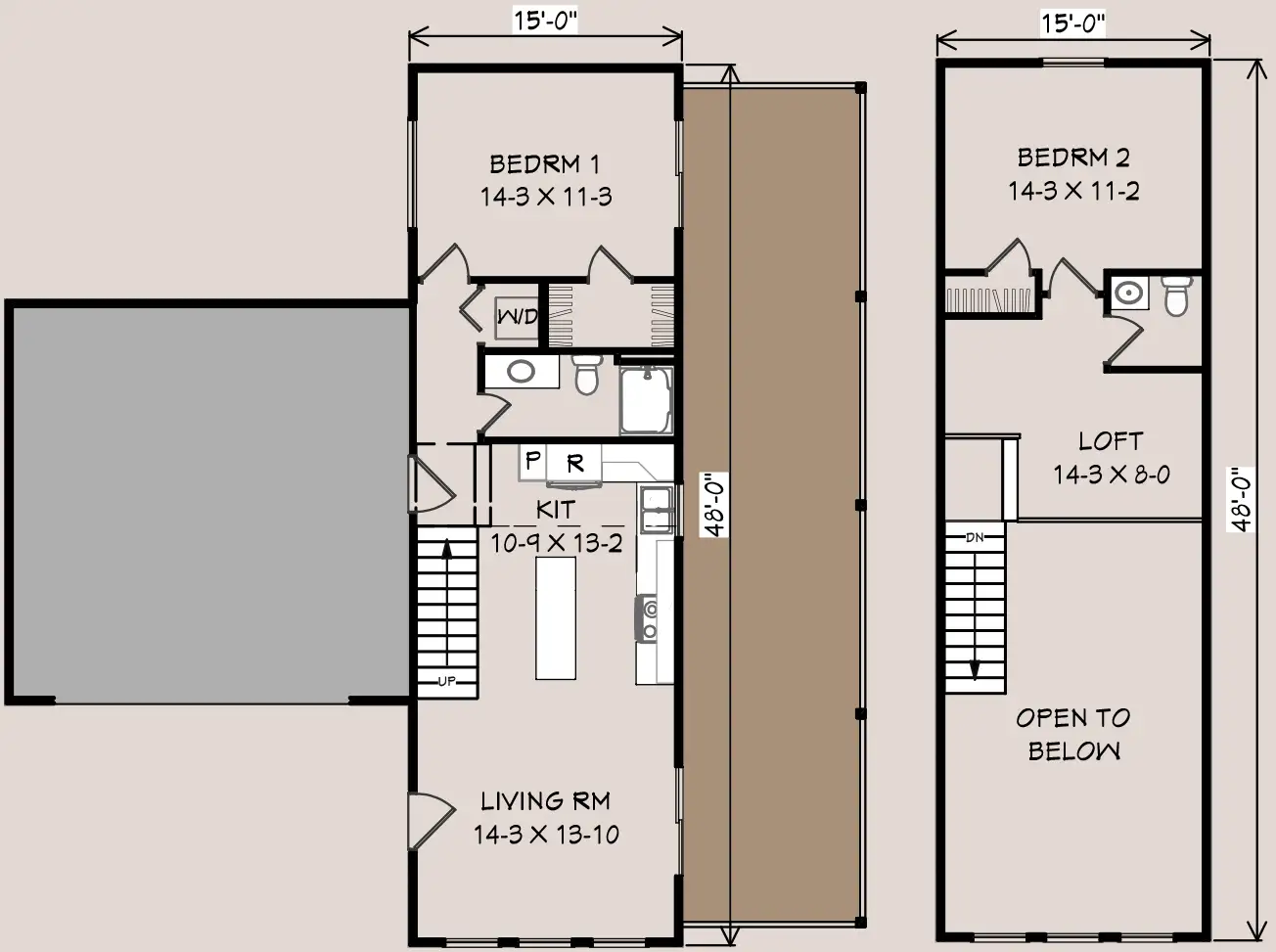
Give yourself room to live the way you want. With open gathering spaces on the main level and private areas above, these two-story and loft homes are designed to bring comfort and balance to everyday life. Explore different layouts, compare features, and see how each home can be tailored to you – from expanded living spaces to layout variations that fit your property and your plans.
Make It Yours
Start with a plan you like, then make it truly yours. You’ll work with experienced builders and designers to tailor every detail to fit your lifestyle and your family.
Schedule a free consultation with your Authorized Heritage Builder by calling us at (800) 759-2782
Let’s hear it!
All fields are required.
We will see your message soon and respond accordingly.